Villa singola in vendita

Montalto Di Castro, Strada della Principessa - Pescia Romana
€ 449.000
245 Mq 245 Mq
2 bagni 2 bagni

Villa singola in vendita

Montalto Di Castro, Strada della Principessa - Pescia Romana

Descrizione annuncio

Pescia Romana – Casale indipendente con 5.000 mq di terreno

Nella campagna di Pescia Romana, in Strada della Principessa, proponiamo in vendita casale indipendente da ristrutturare, con ampio terreno e vista panoramica.

Posizione riservata ma ben collegata alla SS Aurelia, con rapido accesso a Montalto di Castro e ai principali servizi.

L’immobile è suddiviso in due unità indipendenti:

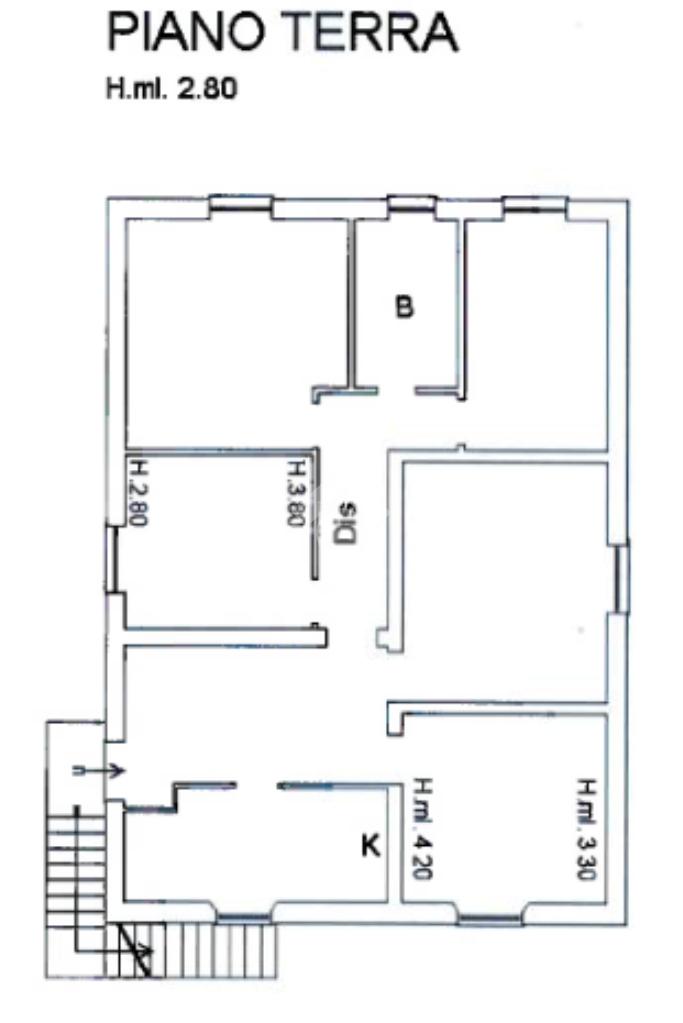
Il piano terra è composto da una zona giorno separata dalla cucina, una camera matrimoniale e una ceretta e un bagno finestrato.

Tramite una scala esterna si raggiunge il secondo appartamento situato al piano primo,ed è così composto: un disimpegno che collega la cucina , un ambiente attualmente utilizzato come ripostiglio,una sala da pranzo, tre camere da letto matrimoniali ed infine un bagno finestrato.

Entrambe le unità sono completamente da ristrutturare.

Completano la proprietà: un terreno di circa 5.000 mq, un pollaioe due magazzini.

La proprietà gode di una vista aperta e panoramica, con affacci sulla campagna circostante e scorci su Pescia Romana.

Dati Tecnici:Infissi in legno/vetro, acqua diretta,fognatura settica, riscaldamento: al piano terra: GPL e al piano primo: stufa a legna.

Soluzione ideale sia come abitazione principale, sia come casa vacanze o investimento per attività ricettiva.

Mostra tutto

Nelle vicinanze

Farmacia Farmacia
Farmacia Mazzoni
1,1 Km
Supermercati Supermercati
Il Chiarone
1,3 Km
Negozi Negozi
Sapori e Profumi di Maremma
1,4 Km
Bar Bar
Bar
1,1 Km
Eden bar
1,3 Km
Ristoranti Ristoranti
magic
1,2 Km
Ristoranti
1,2 Km
Il gatto e la volpe
1,3 Km
Bifora
1,4 Km
Mostra tutto

Caratteristiche

Rif.:
61195520
Piano:
1 di 1 (Piano basso)
Posti auto:
5
Camere da letto:
5
Arredamento:
Assente
Condizionamento:
Assente
Mostra tutto
Prezzo Prezzo
€ 449.000
Rata mutuo Rata mutuo
€ 2.133 / mese
Spese annue Spese annue
€ 0
Proponi il tuo prezzoProponi il tuo prezzo

Classe Energetica

G
G
G
G
G
G
G
G
G
EP invernale del fabbricato:
EP estiva del fabbricato:
Anno di costruzione:
1967
Riscaldamento:
Autonomo
Tipo impianto:
A stufa
Tipo alimentazione:
GPL

Ti interessa visionare l'immobile?

Fissa un appuntamento  Fissa un appuntamento

Richiedi informazioni

Clicca su Leggi per aprire l'informativa
* Questi campi sono obbligatori

Calcola il tuo mutuo

Semplice e senza impegno
Anticipo

( % )
Mutuo

( % )

pochi semplici passi

inserisci i tuoi dati
Questionario completato
Grazie per aver richiesto un appuntamento senza impegno con un nostro Consulente del Credito e Assicurativo.

Hai inserito correttamente tutti i dati necessari e a breve riceverai una e-mail con un link da convalidare per inviare i tuoi dati.
Affiliato
Grupposabinamontalto Srl
Via Aurelia Tarquinia, 47 01014 Montalto Di Castro (VT)
Via Aurelia Tarquinia, 47 01014 Montalto Di Castro (VT)
Zona: Montalto di Castro
Mostra su mappa
Affiliato
Grupposabinamontalto Srl
Via Aurelia Tarquinia, 47 01014 Montalto Di Castro (VT)

2026 Tecnocasa Franchising S.p.A. - P. IVA 08365160152 - Via Monte Bianco 60/A 20089 Rozzano (MI). Ogni agenzia ha un proprio titolare ed è autonoma. Privacy policy | Policy utilizzo | Cookie policy